
Techniques to Cut Senior Stress in Assisted Living
The transition to assisted living in Eau Claire, WI, should feel like stepping into a world of comfort and support.
Levels of care: Assisted Living
Levels of care: Assisted Living
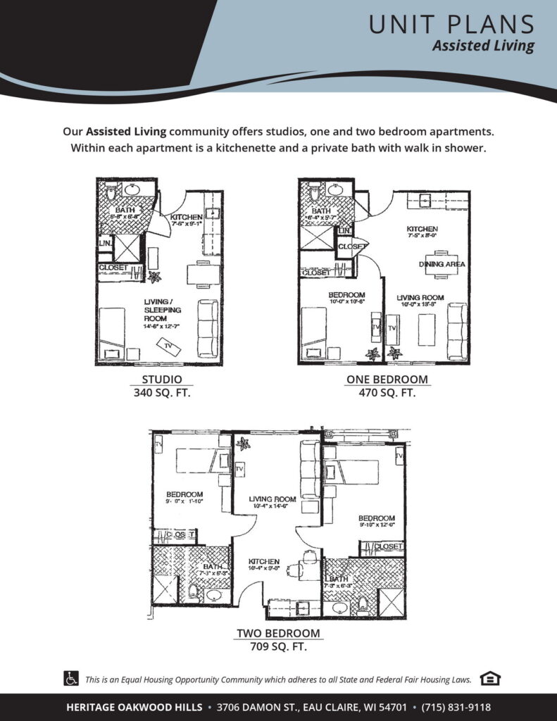
Heritage at Oakwood Hills is a vibrant 39-unit community in Eau Claire, WI that pairs a homelike atmosphere and unique amenities with a multidisciplinary staff and unparalleled care. Our studio, one- and two-bedroom senior assisted living apartments come complete with a kitchenette, private bathroom with walk-in shower and spacious storage areas.
Assisted Living at Heritage Senior Living offers seniors the opportunity to enjoy their independent lifestyle while receiving the right amount of assistance in a private setting, with a choice between studio, one- and two-bedroom assisted living apartments. At our retirement community in Middleton, Assisted Living residents can receive up to 28 hours of personalized care each week, which is tailored to their individual needs. With 24/7 staff, a full-time licensed nurse, ongoing staff training and personalized emergency call pendants, families can rest easy knowing that their loved one’s care is in good hands in our Assisted Living community in Middleton, WI. Plus, the caring and highly experienced assisted living staff members at Heritage Middleton help plan events, social activities, entertaining and outings to keep everyone’s social and recreational calendars full. From exercise programs and religious services to scheduled outings and intergenerational events, our monthly calendars have everything Assisted Living residents need to stay active – body, mind and spirit.
Use our cost comparison sheet to see how much time and money you can save when you choose a Senior Care Community with these amazing offerings over private, in-home care!
Our blog covers essential tips and information for seniors and their families. From wellness advice to the latest in senior care, stay up to date with all things senior living.

The transition to assisted living in Eau Claire, WI, should feel like stepping into a world of comfort and support.

This decision weighs heavily on families; the choice between an assisted living facility in Eau Claire, WI and a nursing

Labor Day Celebration Ideas for Seniors in Assisted Living in Eau Claire, WI Picture your loved one sitting in their
(715) 831-9118
Monday to Friday: 8am-8pm Weekend: 10am – 5pm
3706 Damon St. Eau Claire, WI 54701
If you are coming from Seymour, WI, head south onto US-53 S to Eau Claire. In 2.3 miles, take exit 86 for WI-93 Trunk toward La Crosse. In another 0.6 miles, keep right to continue onto WI-93 Trunk S. In 1.1 miles, make a left onto Damon St and arrive at your destination, Heritage Senior Living (3706 Damon St. Eau Claire, WI 54701).
If you are coming from Fall Creek, head west onto US-12 W/W Lincoln Ave. In 6.9 miles, make a left onto Mayer Rd. In another mile, make a right onto Prill Rd. In 1.3 miles you will continue straight to Golf Rd. At the intersection past the Oakwood Mall, make a right onto Oakwood Hills Pkwy then take a left onto Damon St. In 0.1 miles arrive at your destination, Heritage Senior Living (3706 Damon St. Eau Claire, WI 54701).
If you are coming from Cleghorn, WI, head north onto WI-93 Trunk N. In 6.4 miles, make a right onto Damon St. Continue onto Damon St and arrive at your destination, Heritage Senior Living (3706 Damon St. Eau Claire, WI 54701).
If you are coming from Caryville, WI, take WI-85 E (State Rd 85) for 5.5 miles. Then turn left onto WI-37 N. In 2.4 miles, turn right to merge onto I-94 E toward Madison. Next, take exit 68 for WI-93 toward Eleva/Eau Claire. Make a sharp left onto WI-93 Trunk N. Continue for 0.7 miles then turn right onto Damon St and arrive at your destination, Heritage Senior Living (3706 Damon St. Eau Claire, WI 54701).
See our state-of-the-art facilities and learn about our comprehensive services.
Come see why Heritage Senior Living is the premier choice for exceptional care. Explore our vibrant community and find the perfect fit for your loved one.
